New Bliss Logo

Modèle De Procuration Pour Vente Immobilière Pdf


Modèle De Procuration Pour Vente Immobilière Pdf

de louer pour moi et en mon nom, de la société Bloc Hugo inc., l’appartement situé au 114-233, rue Alexandre, à Montréal, pour la période du 1 er juillet 2022 au 30 juin 2023,.

La procuration pour faciliter la signature d’un acte authentique ! Lors d’une vente immobilière, les parties peuvent confier à un mandataire le pouvoir d’agir en leur.

Ci-dessous notre exemple de modèle de lettre: (Titre, Nom, Prénom), né (e) le date) à (lieu), résidant à (adresse), agissant en tant que mandataire afin de me représenter en mon.

Pour rédiger votre procuration pour vente immobilière, vous pouvez vous inspirer d’un modèle existant ou solliciter les conseils d’un juriste : notaire, avocat, etc..

Modele procuration pour vente immobiliere. connexion...en 24h maximum document type À tÉlÉcharger modèle procuration immobilière modÈle procuration immobiliÈre modele.

Procuration pour la vente d'un bien immobilier en indivision. Rédigé par des auteurs spécialisés Ooreka • À jour en March 2023. Téléchargez gratuitement ce courrier type à.

Le document se rédige sous vos yeux au fur et à mesure de vos réponses. A la fin, vous le recevez aux formats Word et PDF . Vous pouvez le modifier et le réutiliser ..

Modèle de formulaire de procuration. Voici un exemple de formulaire de procuration à rédiger dans le cadre d’un compromis de vente. Identité du mandant..

autant pour la rédaction de la procuration que pour son exécution. ... MODÈLE DE PROCURATION ET NOTE EXPLICATIVE/ NOTE EXPLICATIVE | 8 Si vous désirez.

Lettre type de procuration pour la signature d'un bail

Modèle De Procuration Pour Vente Immobilière Pdf Procuration pour un état des lieux : modèle gratuit
Modèle De Procuration Pour Vente Immobilière Pdf Modele Procuration | PDF
Modèle De Procuration Pour Vente Immobilière Pdf 2
Modèle De Procuration Pour Vente Immobilière Pdf Modèle de lettre : Procuration pour la vente d'un bien immobilier en  indivision
Modèle De Procuration Pour Vente Immobilière Pdf MODÈLE DE PROCURATION ET NOTE EXPLICATIVE - PDF Téléchargement Gratuit
Modèle De Procuration Pour Vente Immobilière Pdf Read the document - The New York Times
Modèle De Procuration Pour Vente Immobilière Pdf Procuration Modele | PDF | Institutions sociales | Sciences sociales
Modèle De Procuration Pour Vente Immobilière Pdf Procuration Speciale (SARAM) 1 | PDF
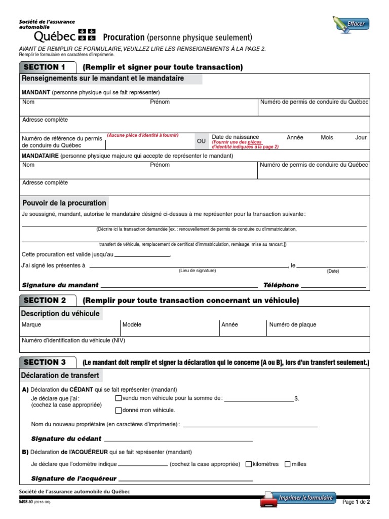
Modèle De Procuration Pour Vente Immobilière Pdf Formulaire Procuration PDF | PDF | Contrat de mandat | Document d'identité
Modèle De Procuration Pour Vente Immobilière Pdf Mandat Vente Bien | PDF | Contrat de mandat | Gouvernement
Modèle De Procuration Pour Vente Immobilière Pdf Lettre de procuration - Modèle gratuit de lettre
Modèle De Procuration Pour Vente Immobilière Pdf Modèle de lettre d'annulation de préavis pour un logement
Modèle De Procuration Pour Vente Immobilière Pdf La procuration pour une vente immobilière
Modèle De Procuration Pour Vente Immobilière Pdf Modèle de formulaire 5 que vous devez avoir (ressource de téléchargement  gratuit)