New Bliss Logo

Elm Leblanc Acleis Nglm 24 6h Notice Technique


Elm Leblanc Acleis Nglm 24 6h Notice Technique

Consultez gratuitement le manuel de la marque e.l.m. leblanc Acléis NGLM24-5H ici. Ce manuel appartient à la catégorie Chaudières et a été évalué par 3 personnes avec une.

Marque. Elm leblanc. Dénomination. ACLEIS BASSE TEMPERATURE - Chaudière nue - Pour chauffage et eau chaude instantanée. Ventouse - Modèle NGVM24-6H - Puissance.

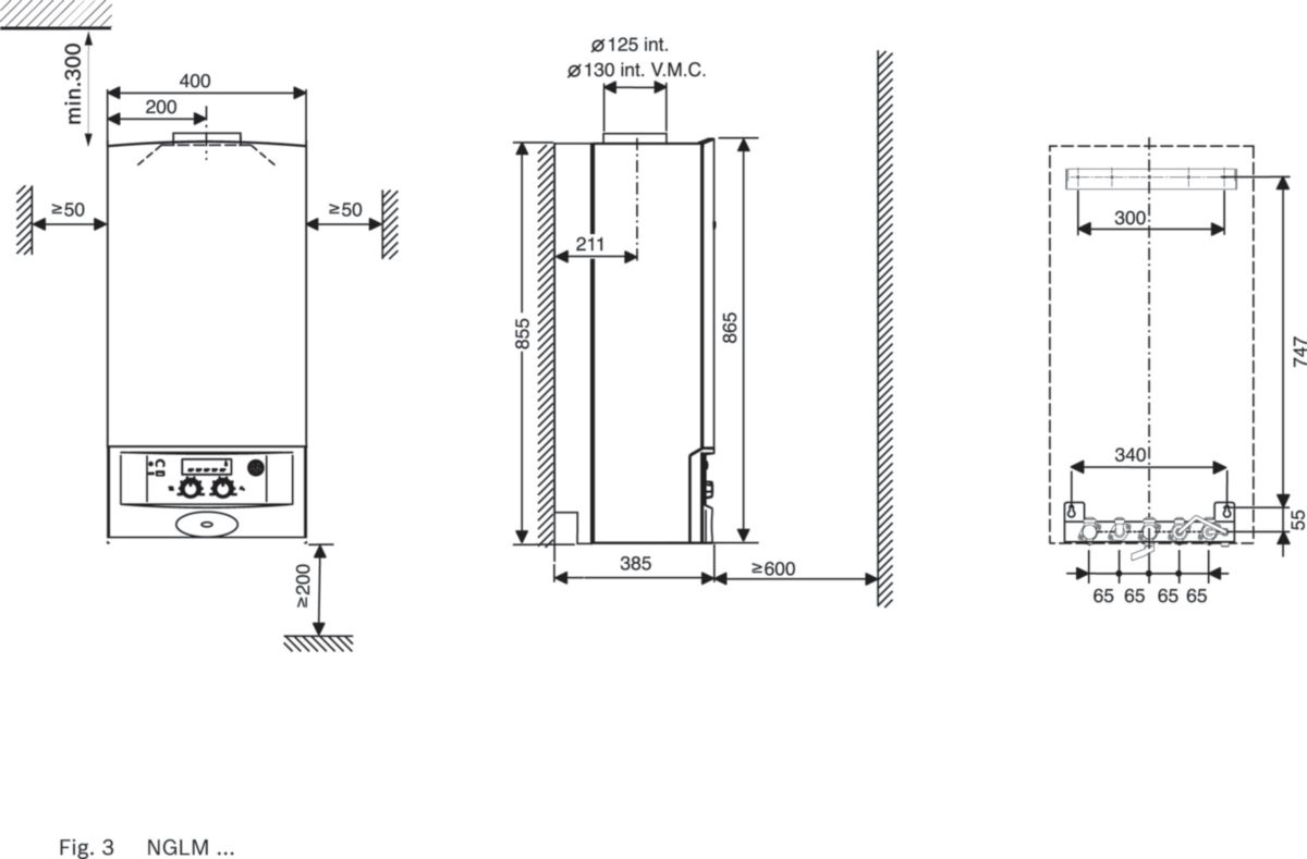
B consulter la notice technique des accessoires ventouse livre avec lappareil. 5.1 Remarques importantes 4.2.5 Ventilation Mcanique Contrle ... 5.8.2 Appareils NGLM 24.

Le mode d'emploi chaudière ELM LEBLANC ACLEIS NGLM24-5H vous rend service. Cliquez sur le bouton orange pour lancer le téléchargement du mode d'emploi ELM.

Téléchargez votre mode d’emploi ou notice ACLEIS NGLM24-6HB. Le téléchargement est gratuit si vous essayez gratuitement EasySAV pendant 14 jours, vous pourrez ensuite.

Mode d’emploi e.l.m. leblanc NGLM23-2H acleis Chaudière à gaz. Besoin d’un manuel pour votre e.l.m. leblanc NGLM23-2H acleis Chaudière à gaz ? Ci-dessous, vous pouvez.

Manuel pour e.l.m. leblanc NGLM24-5H acleis Chaudière à gaz. Consultez et téléchargez le PDF, trouvez des réponses aux questions fréquemment posées et lisez les.

Les schémas internes ELM LEBLANC NGLM24-6H sont des informations réservées à des personnes possédant des bases en éléctronique et électricité. Ils permettent de détecter.

Achat Chaudière Elm Leblanc Acléis NGLM 24-6H à prix discount Découvrez toute l’étendue du rayon Chaudière à condensation : . L’univers Bricolage de Cdiscount, ce sont chaque.

Quel est le rapport entre les graduations mini 1 2 3 4 5 6 maxi et °80°40°50°60°70°80° c'est une chaudière acleis elm leblanc NGLM-24-6H. Signaler.

notice elm leblanc acleis nglm cf 24 kw acléis BAS NOx La Elm Leblanc Acleis NGLM 24-7M à tiardeur indigène d’une puissance de 24kw, La Elm Leblanc Acleis NGLM 23-7MN5.

Thermique] Chaudière à gaz ELM LEBLANC NGLM 24-6h

Elm Leblanc Acleis Nglm 24 6h Notice Technique Chaudière murale gaz ACLEIS BAS Nox NGLM 24-7XN Cheminée THERMOFROID  DISTRIBUTION
Elm Leblanc Acleis Nglm 24 6h Notice Technique ELM LEBLANC - Chaudière murale gaz basse température mixte ACLEIS 24 kW  cheminée classe énergétique B/C NGLM 24 - 7XN / Réf 7716705075 | Cedeo
Elm Leblanc Acleis Nglm 24 6h Notice Technique 2
Elm Leblanc Acleis Nglm 24 6h Notice Technique 2
Elm Leblanc Acleis Nglm 24 6h Notice Technique Thermique] Chaudière à gaz ELM LEBLANC NGLM 24-6h
Elm Leblanc Acleis Nglm 24 6h Notice Technique Chaudière Elm Leblanc Acléis NGLM 24-7XN BASNox Cheminée Chaudière gaz
Elm Leblanc Acleis Nglm 24 6h Notice Technique Notice d emploi. Chaudières murales gaz Tirage naturel, V.M.C. et étanche à  ventouse. La passion du service et du confort - PDF Téléchargement Gratuit
Elm Leblanc Acleis Nglm 24 6h Notice Technique Thermique] Branchement thermostat sur ELM Leblanc Acleis NGLM24-5H
Elm Leblanc Acleis Nglm 24 6h Notice Technique 2
Elm Leblanc Acleis Nglm 24 6h Notice Technique Achetez vente chaudière gaz quasi neuf, annonce vente à Choisy-au-Bac (60)  WB151378127
Elm Leblanc Acleis Nglm 24 6h Notice Technique Chaudière murale gaz ACLEIS BAS Nox NGLM 24-7XN Cheminée THERMOFROID  DISTRIBUTION
Elm Leblanc Acleis Nglm 24 6h Notice Technique Chaudières murales gaz Tirage naturel, V.M.C. et étanche à ventouse  NGVM24-5H NGLM24-5H NGLM24-5S NGLM23-5H5 NGLM21-5HN5 - PDF Téléchargement  Gratuit
Elm Leblanc Acleis Nglm 24 6h Notice Technique rivière assistant Albany elm leblanc acleis acheteur Collègue Record
Elm Leblanc Acleis Nglm 24 6h Notice Technique Remise en pression Chaudière Elm Leblanc megalis NGLA 24-2H - YouTube