New Bliss Logo

Chaudière Fioul Atlantic Optima 4125 B Avis


Chaudière Fioul Atlantic Optima 4125 B Avis

Chaudière au sol Atlantic OPTIMA Fioul 4125B. Marque : Atlantic. 2 30080€. Tous les prix incluent la TVA. http://www.materiel-du-pro.fr/Picture/P_1/1335/chaudiere-au-sol.

Chaudière au sol Atlantic OPTIMA Fioul 4125B. Sur commande. Chaudière fioul Basse Température, ECS accumulée. 22 à 33 kW. Cheminée. Nouveau tableau de bord.

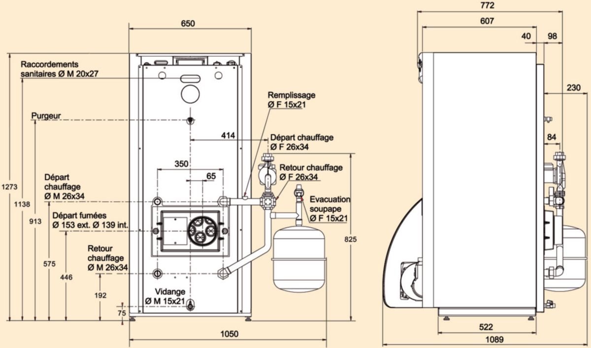
Voir et télécharger Atlantic Optima 4125 B notice de référence en ligne. Optima 4125 B chaudières téléchargement de manuel pdf Aussi pour: Optima 4130 b, Optima 4135 b,.

bonjour, je dois changer une chaudière dans une maison que je viens d''acquérir, en pierre de 230m2, et on me propose une atlantic à condensation à.

- Facile à installer grâce au tableau de préconisation à la sélection du brûleur en option et pieds réglables pour mise à niveau - Corps de chauffe en acier garanti 5 ans -.

Présentation produit : Chaudière au sol Atlantic OPTIMA Fioul 4125B. Confort optimisé grâce à une régulation d'ambiance (en option). Optimisation de l'esthétique et du silence.

Chaudière fioul basse température Atlantic Optima 4125 B Chaudière Fioul

Chaudière Fioul Atlantic Optima 4125 B Avis Chaudiere Optima 4125 B 25kw | Leroy Merlin
Chaudière Fioul Atlantic Optima 4125 B Avis ATLANTIC PAC ET CHAUDIERE - Chaudière au sol chauffage et ECS à  accumulation OPTIMA 4125B fioul-gaz 25 kW ballon inox de 80 litres Réf.  026617 | Cedeo
Chaudière Fioul Atlantic Optima 4125 B Avis Notice de référence FR NL PL ES PL. Optima 4125 B - code Optima 4130 B -  code Optima 4135 B - code - PDF Téléchargement Gratuit
Chaudière Fioul Atlantic Optima 4125 B Avis Chaudière OPTIMA 4135B sans brûleur ATLANTIC PAC ET CHAUDIER...
Chaudière Fioul Atlantic Optima 4125 B Avis ATLANTIC PAC ET CHAUDIERE - Chaudière au sol chauffage et ECS à  accumulation OPTIMA 4125B fioul-gaz 25 kW ballon inox de 80 litres Réf.  026617 | Cedeo
Chaudière Fioul Atlantic Optima 4125 B Avis Flexible fioul s9.52/10 183024 pour Chaudiere Atlantic | Leroy Merlin
Chaudière Fioul Atlantic Optima 4125 B Avis Chaudière Atlantic Optima - Problème en production d'eau chaude.
Chaudière Fioul Atlantic Optima 4125 B Avis ATLANTIC PAC ET CHAUDIERE - Chaudière au sol chauffage et ECS à  accumulation OPTIMA 4125B fioul-gaz 25 kW ballon inox de 80 litres Réf.  026617 | Cedeo
Chaudière Fioul Atlantic Optima 4125 B Avis Chaudière Altlantic Optima problème stabilisation température production  ECS | Forum Chauffage
Chaudière Fioul Atlantic Optima 4125 B Avis 2
Chaudière Fioul Atlantic Optima 4125 B Avis Chaudière Altlantic Optima problème stabilisation température production  ECS | Forum Chauffage
Chaudière Fioul Atlantic Optima 4125 B Avis Atlantic OPTIMA CONDENS 4125 BV Manuel du propriétaire | Manualzz
Chaudière Fioul Atlantic Optima 4125 B Avis Notice de référence FR NL PL ES PL. Optima 4125 B - code Optima 4130 B -  code Optima 4135 B - code - PDF Téléchargement Gratuit
Chaudière Fioul Atlantic Optima 4125 B Avis Chaudière Altlantic Optima problème stabilisation température production  ECS | Forum Chauffage